
Bethel EDC Housing Program
Link To List of Utility Resources
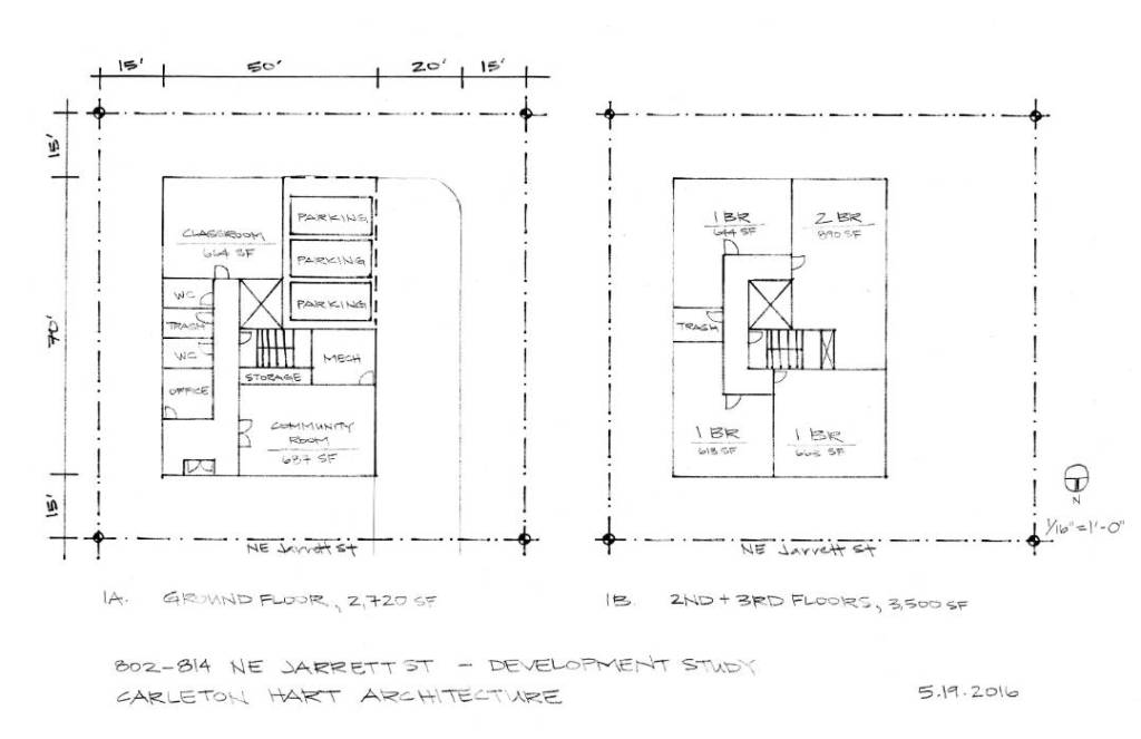
In 2019, we used funding from Metro’s Affordable Housing Proposal on Faith-Owned Property to create full plans for developing 12 affordable rental units and a community facility on the two property lots at 802 NE Jarrett St. and 815 NE Jarrett St in Portland. This project will offer the impacted community of color the opportunity to stay in their neighborhood or return to a community they were forced to leave.
With the help of city staff we have already up-zoned the site, explored increased building footprint through street vacating, completed initial architectural renderings by Carleton Hart Architecture Firm, and completed a pre-COVID cost analysis. We have full plans to build a 3-storey building with a community-use facility on the first floor and affordable housing for elderly and families on the two top floors.
Now we need to publicize our project, engage community and partners, and launch our capital campaign to achieve our project budget.
This Repositioning & Reclaiming Our Land project will re-invigorate community support around this project, build board capacity and grow partnership support to launch our capital campaign.
We will develop our board through direct outreach. We will build the capacity of current majority Black board membership with a more diverse board membership. We will target new members with development experience and other skill sets to assist the success of long-range visions.
Our Affordable Housing Project will bring people of all kinds together around a worthy cause. We will see the ripple effect as social capital connections build around other community needs that are greater than our project. The inclusion of a community gathering space on the first floor of the future building represents our dedication to addressing community needs. Bethel AME EDC welcomes the broader community.
We want to work with neighbors to empower the residents of Northeast Portland to make a difference “by supporting grassroots efforts to strike a path towards civic change”. We will build knowledge of the ongoing issue of displacement as well other impacts affecting local Black elders and people of color in general.
Plans for a bold future.
Want to help us make our vision a reality? Reach out to get involved.

